大正時代築の養蚕住宅です。360万円で更地渡しも可能です!気軽にお問い合わせください。
中古住宅
NEW!
松本市大字中山2556-1
※物件位置が表示されていない場合もあります。
正確な位置は取り扱い会社へお問い合わせください。
| 所在地 | 松本市大字中山2556-1 | 建物名 | |
|---|---|---|---|
| 価格 | 180万円 | 税金 | |
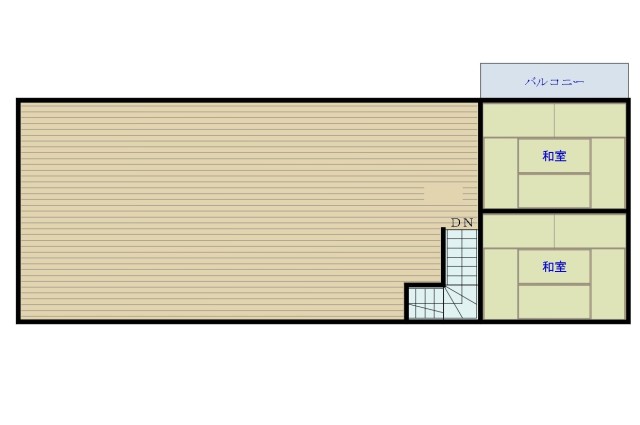
| 土地面積 | 207.68m²(公簿)/62.82坪 | 建物面積 | 198.33m²/59.99坪 |
| 間取 | 7DK | 構造 | 木造 |
| 詳細間取 | 養蚕住宅につき該当する間取りはありません | ||
| 総階数 | 3階 | 完成年月 | 1925年 |
| 湯権 | 下水道 | 汲取 | |
| 通学区 | 引渡/入居日 | 相談 | |
| 管理番号 | 002 | 物件番号 | 451659 |
| 設備 | ・・セットバック要 | ||
| 駐車場 | |||
| 交通 | |||
| 備考 | 【松本市空き家バンク登録物件:物件番号451659】 現状渡し。契約不適合責任は負いませんので、現地をご確認の上、条件をご理解いただいた上でお申し込みください。 バルコニーの下の居室はかなり雨漏りがして腐食が進んでいます。 下水道は敷地内への引込工事は完了していますが、宅内の切替工事は行っておらず現状汲取り式です。 | ||
| 取引態様 | 専任媒介 | 手数料 | 要 |
所有者様からのメッセージ
(お願い)「所有者様からのメッセージ」は空き家の所有者・居住者が感じた主観的な印象やコメントで、内容を保証するものではございません。個々により感じ方は異なりますので、暮らし方をイメージする際のあくまでも参考としてご覧ください。
-
コメント
※「所有者様からのメッセージ」は空き家の所有者・居住者が感じた主観的な印象やコメントです。こちらの内容について、松本市役所や担当の不動産会社へのお問い合わせやご意見は受付けておりませんのでご了承ください。
(有)エス・ケー・ケー
0263-36-5440| 所在地 | 〒390-0874 長野県松本市大手1-6-20ビルヂングサン1F | ||
|---|---|---|---|
| 免許番号 | 長野県知事免許(2)第5463号 | ||
| 業務時間 | 09:00〜17:00 | 休日 | 日曜日 |
| 電話 | 0263-36-5440 | FAX | 0263-36-5148 |
資料請求&お問合せ
- 1 情報のご入力
- 2 入力内容のご確認
- 3 操作完了









